
Casa nm
AÑO: 2023
UBICACIÓN: Venustiano Carranza, Ciudad de México.
SUPERFICIE: 195.65 m².
TIPOLOGÍA: Vivienda Unifamiliar.
ESTADO: Etapa 2 en construcción.
EQUIPO: Arq. Jorge Rangel, ESAU Construcciones.



















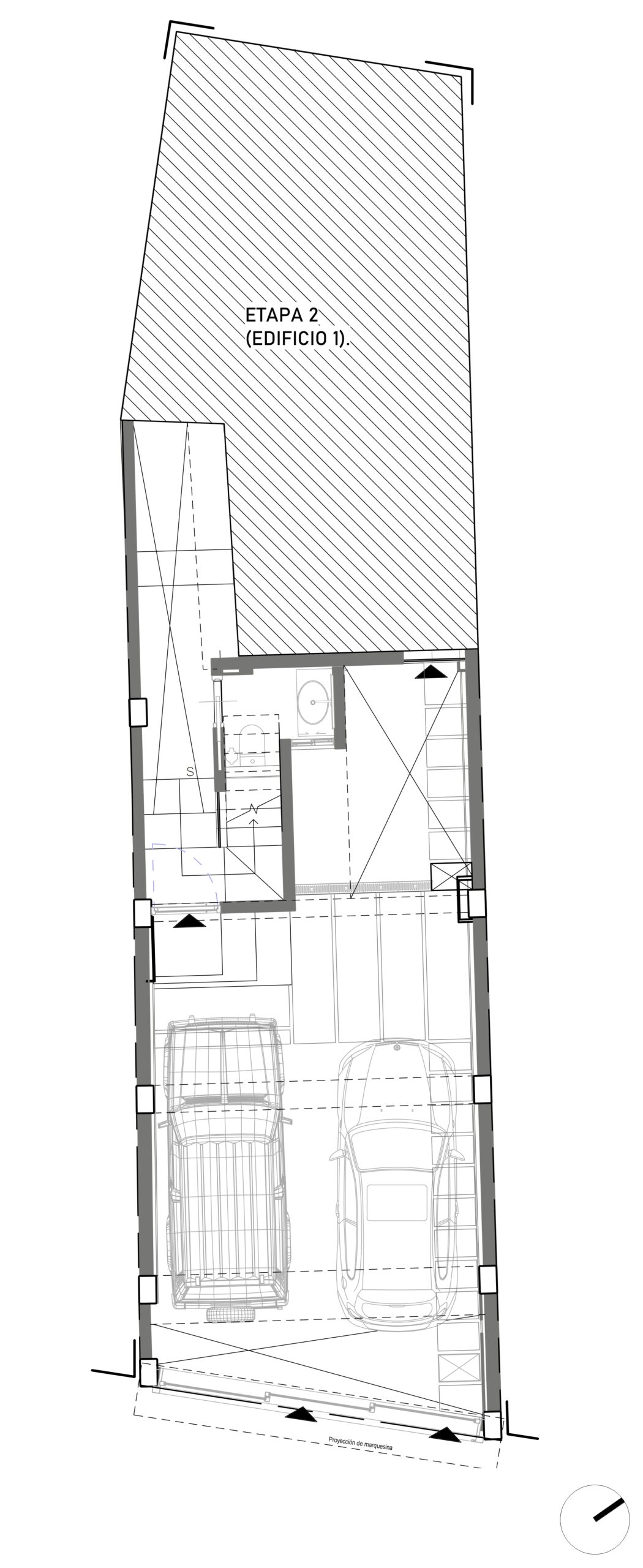
Este proyecto parte de la división de un lote originalmente compartido por tres familias, transformándolo en dos propiedades independientes. Una de ellas será habitada por los clientes, por lo que su diseño responde a sus necesidades actuales y a futuras remodelaciones y ampliaciones, estructurando el proceso en dos etapas.
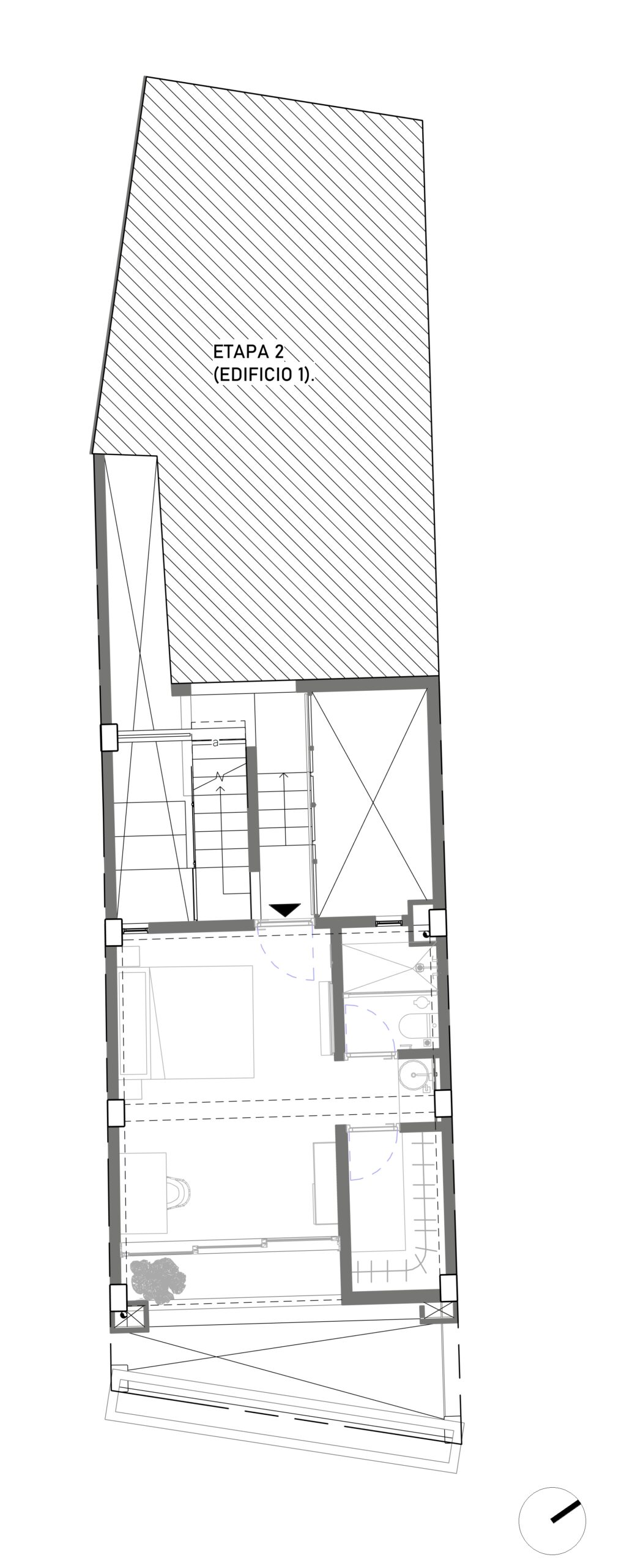
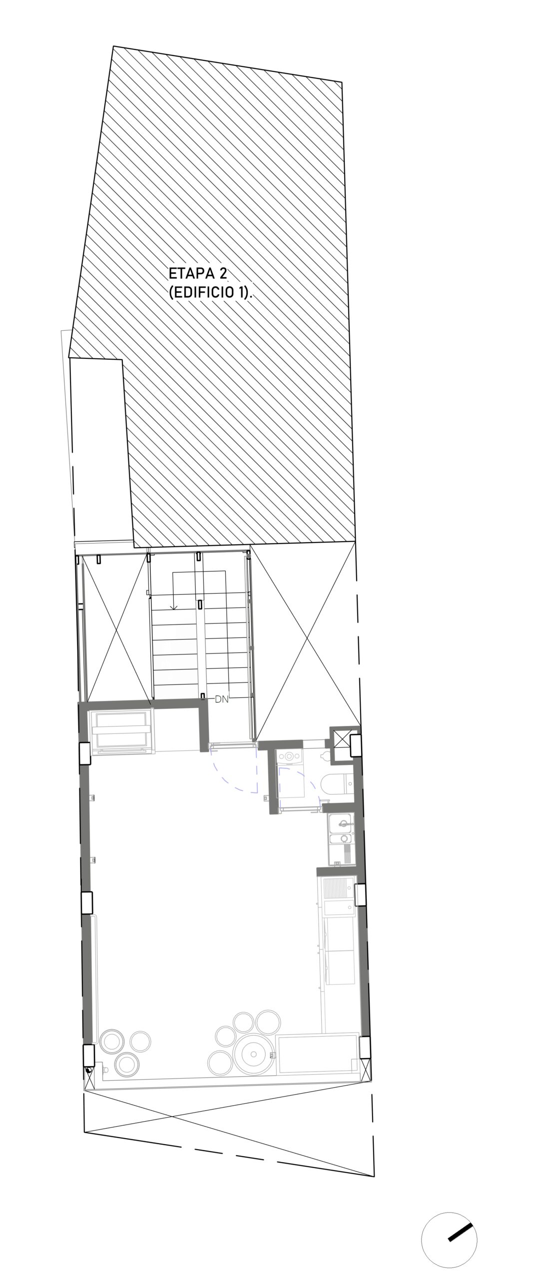
La propuesta se centra en la creación de espacios flexibles, capaces de adaptarse con el tiempo, priorizando la iluminación natural y el almacenamiento eficiente. La conexión entre los espacios nuevos y existentes representó un reto debido a las distintas alturas de ambas construcciones, lo que llevó a soluciones de integración cuidadosas y funcionales. Los materiales elegidos reflejan la personalidad de los clientes, dos hermanos con una preferencia por colores oscuros, tonalidades brillantes y la calidez de la madera.
Entre los elementos clave del diseño, en planta baja se amplía la capacidad de estacionamiento, optimizando el uso del terreno. Una escalera de concreto sólido interconecta todos los niveles, funcionando además como un eje de ventilación e iluminación para la casa. Finalmente, la terraza se concibe como el corazón de las actividades sociales, proporcionando un espacio abierto y versátil para la convivencia familiar.
Este proyecto no solo reconfigura el espacio existente, sino que lo transforma en un hogar dinámico y en constante evolución.
