
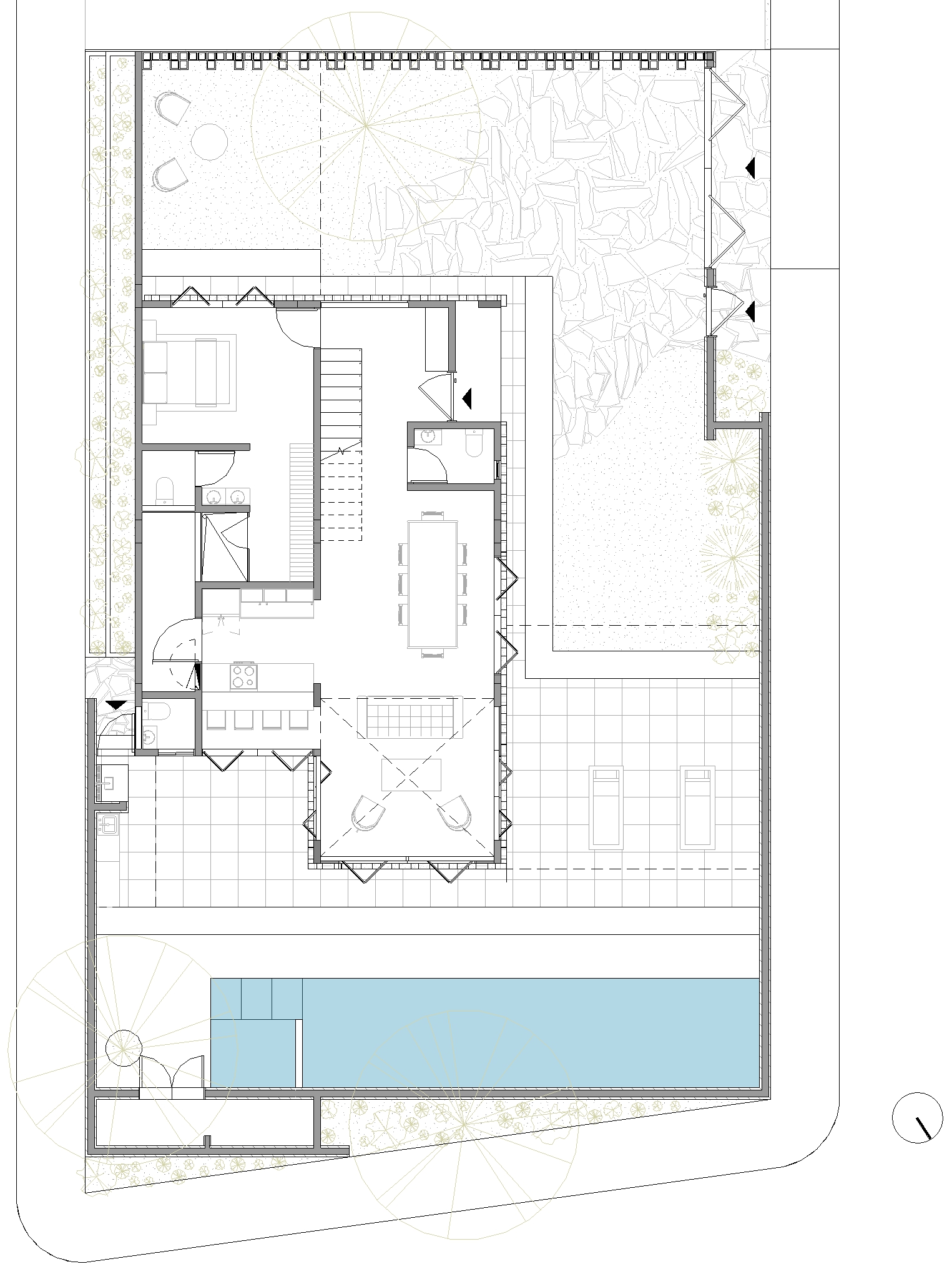
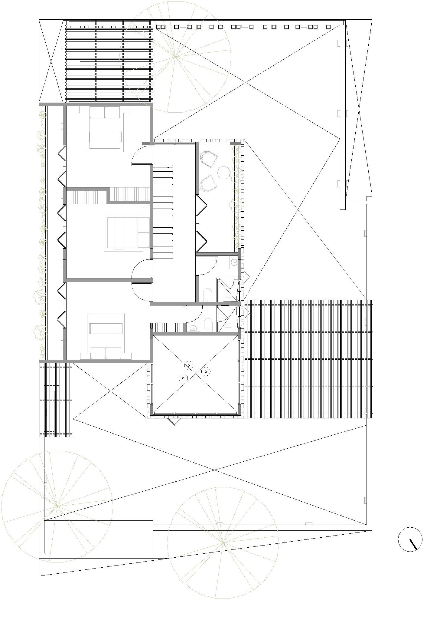
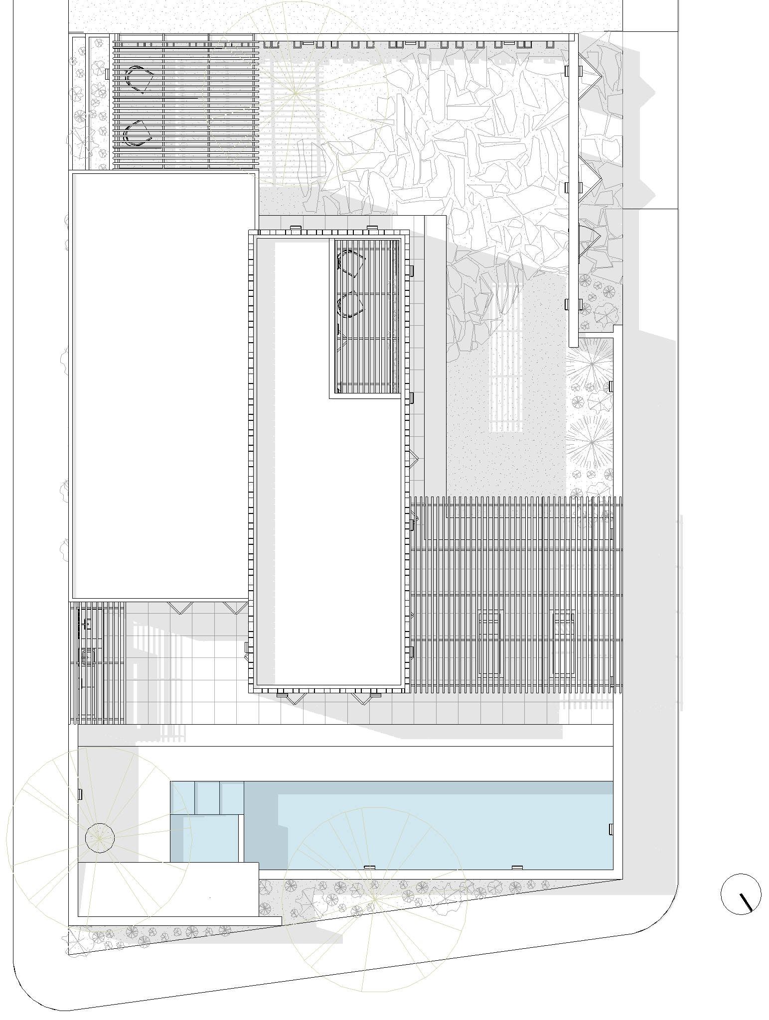
Casa MARACAIBO
AÑO: 2023
UBICACIÓN: Veracruz, México.
SUPERFICIE: 188 m².
TIPOLOGÍA: Vivienda Unifamiliar.
ESTADO: Por arrancar obra.
EQUIPO: Arq. Luis Lemus y Arq. Manuel García









Casa Maracaibo 88 es una vivienda diseñada para disfrutar de la playa y el mar, ubicada a solo unos metros de la arena.
Su propósito es ofrecer a la familia un escape de la realidad y un lugar donde puedan vivir plenamente en un futuro. La casa se caracteriza por su apertura al interior, donde se fusiona la naturaleza con el día a día.
